Notice of Variance at 3903 47 Street Permit No. DV26-001
Share Notice of Variance at 3903 47 Street
Permit No. DV26-001 on Facebook
Share Notice of Variance at 3903 47 Street
Permit No. DV26-001 on Twitter
Share Notice of Variance at 3903 47 Street
Permit No. DV26-001 on Linkedin
Email Notice of Variance at 3903 47 Street
Permit No. DV26-001 link
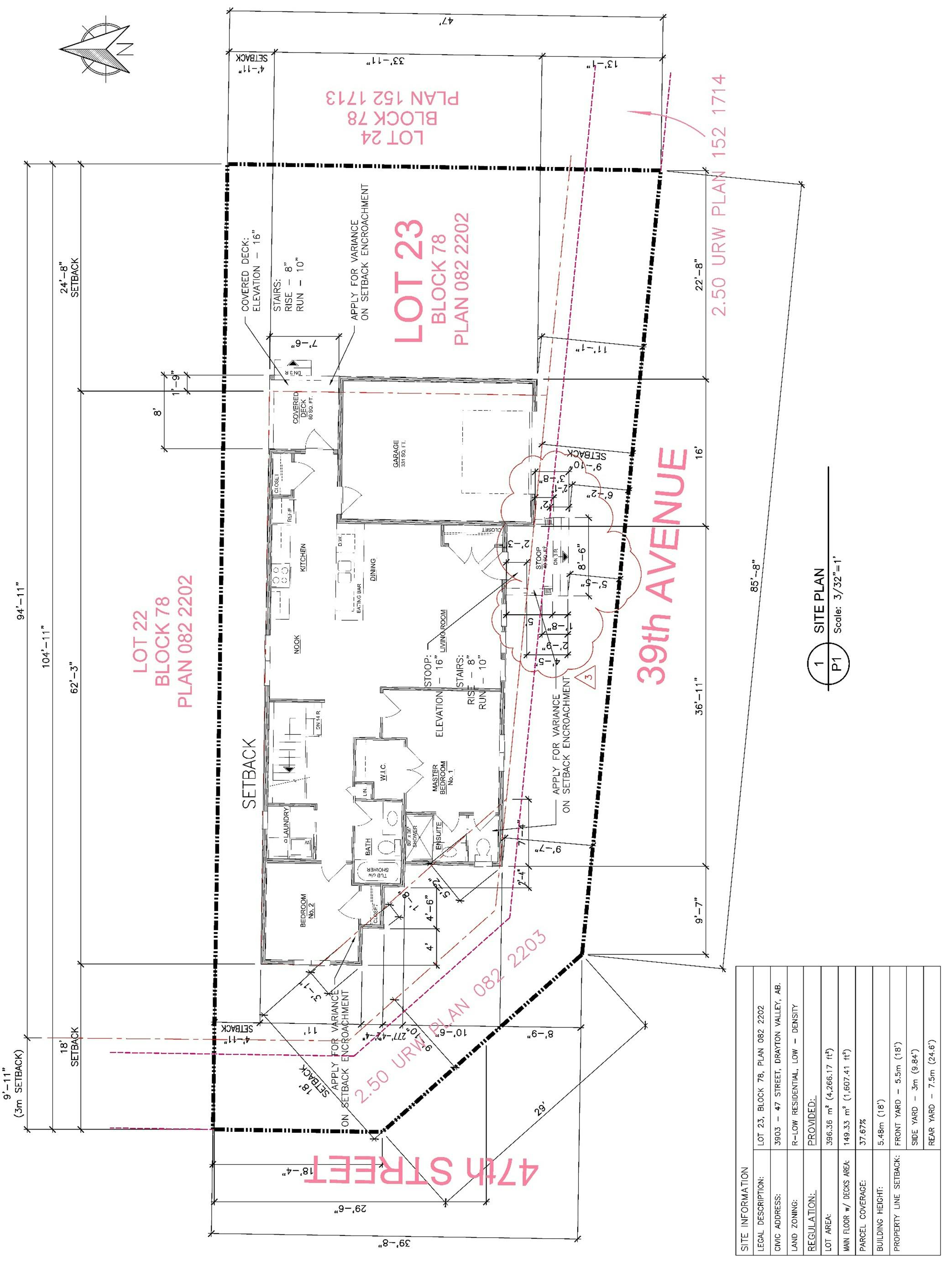
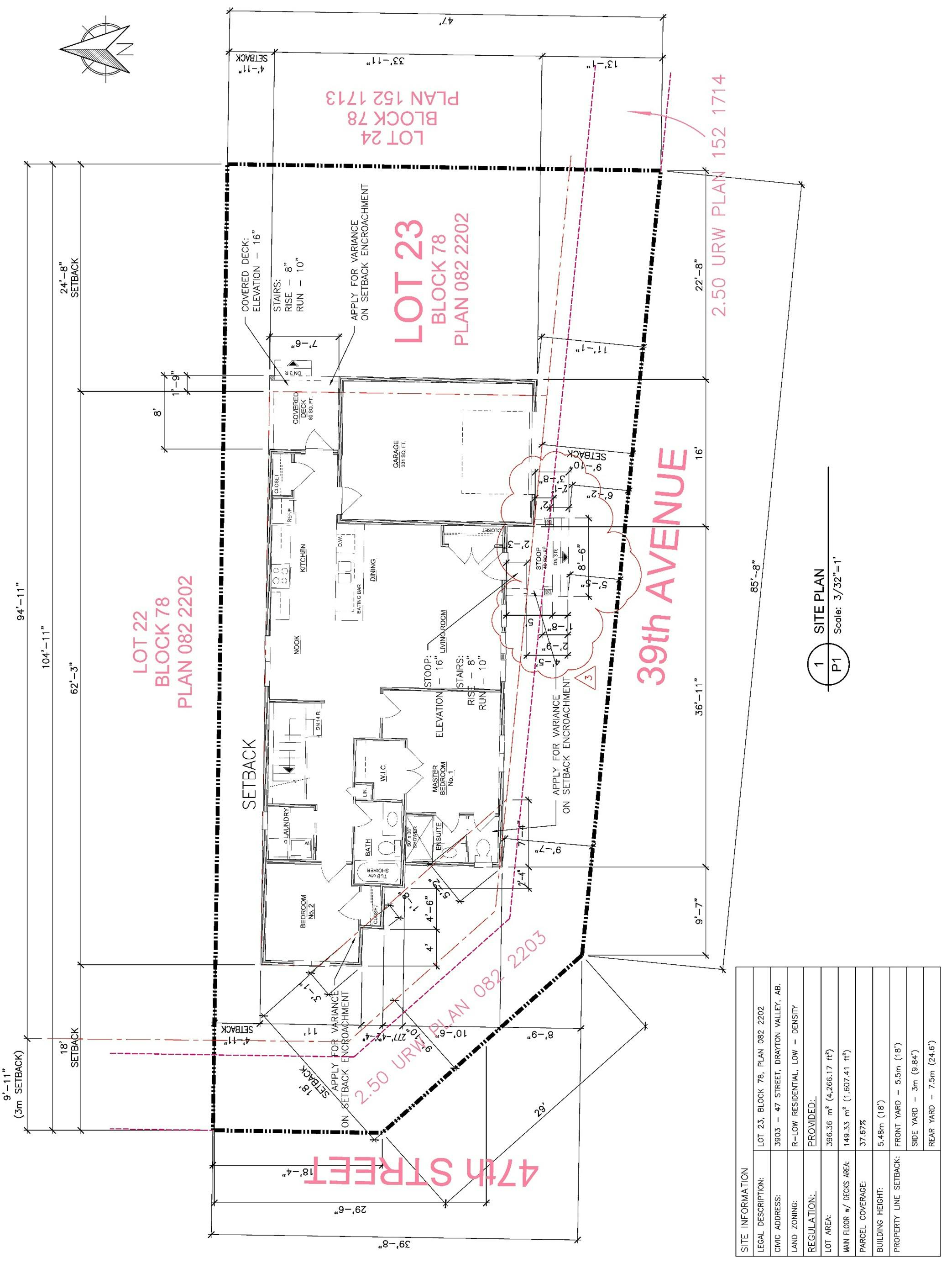
The Town of Drayton Valley has received a Development Permit application for a single-detached dwelling at 3903 47 Street, Drayton Valley, AB T7A 1V2 (Plan 082 2202; Block 78; Lot 23) with variances.
The application is requesting the following variances:
REGULATION | REQUIRED | PROPOSED | VARIANCE % |
Front Yard Setback (West) | 5.5 m | 4.5 m | 18. 2% |
5.5 m | 5.0 m | 9.1% | |
5.5 m | 3.9 m | 29.1% | |
Flanking Yard Setback (South) | 3.0 m | 2.9 m | 3.3% |
Rear Yard Setback (East) | 7.5 m | 6.9 m | 8% |
Parking | 2 stalls per unit | 1 stall | 50% |
Written comments or concerns are accepted by the Town until 4:30 PM on March 3, 2026, using one of the following methods:
- In Person: Drayton Valley Civic Centre, 5120 – 52 Street, Drayton Valley, AB
- By Mail: Box 6837, Drayton Valley, AB, T7A 1A1
- By Email: naffan@v3co.ca
Have a Question?
Page last updated: 18 Feb 2026, 10:01 AM


Thank you for your contribution!
Help us reach out to more people in the community
Share this with family and friends